New Listing
$2,078,888
 $11,160 est/mo Sourced by Back At You

218 19 Avenue,Calgary, AB T2M0Y2

Calgary, AB T2M0Y2

Share:

Description

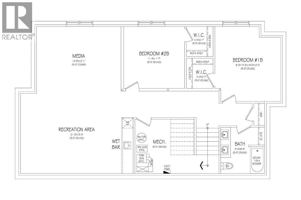
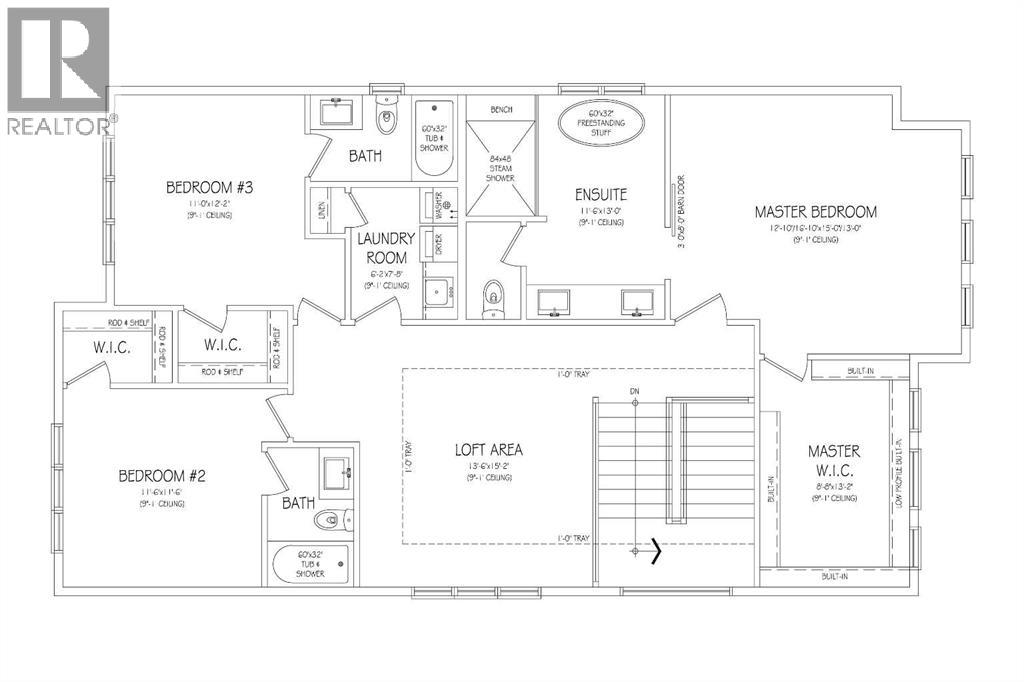
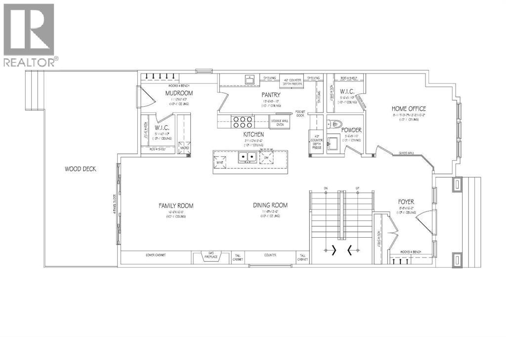
Set on a tree lined non-through street next to Circus Park, this modern 5-bed, 4.5-bath DETACHED HOME captures the best of inner-city living: where timeless design meets everyday ease. It’s a home that feels both elevated and practical, nestled in a community known for its tree-lined streets, family-friendly parks, and coffee spots that still remember your name. Confederation Park and the Mount Pleasant Community Pool are a short bike ride away, and your minutes to 16th Ave or Center Street, keeping downtown close without losing that neighbourhood calm. With top-rated schools like King George, Balmoral, & Crescent Heights nearby, plus quick access to SAIT and the University of Calgary, it’s a location that fits every stage of life. Modern, bright, and thoughtfully laid out, this home feels effortless the moment you step inside. A quiet foyer creates a proper arrival with space to drop keys, hang a coat, and take in the natural light pouring through the front windows. Off the entry, a peaceful home office with a glass wall sets the tone for productive workdays, while a stylish powder room sits conveniently beside. The main floor is all about connection. The kitchen sits center stage with an OVERSIZED ISLAND for casual meals and prep, sleek quartz counters, full-height cabinetry, and a premium appliance package that makes weeknights & hosting equally simple. A WALK-THROUGH PREP KITCHEN & PANTRY carries groceries straight from the door to your shelves with an extra sink and full-size freezer, linking neatly to a mudroom that keeps daily clutter out of sight with a large walk-in closet. The dining area easily fits a big table for gatherings with a modern built-in buffet, and the rear great room is the spot for movie night, featuring a clean-lined GAS FIREPLACE and sliding glass doors that open to the backyard. Custom railings lead to the upper loft with a tray ceiling - perfect for a second living area, kids’ play zone, or quiet reading spot. The primary suite is a calm escape with an OVERSIZED WALK-IN CLOSET and a spa-style ensuite featuring DOUBLE VANITY, a glass steam shower, and a deep soaker tub. Two additional bedrooms have WALK-IN CLOSETS and their own 4-pc modern ENSUITES, and laundry is on this level with a sink and built-in linen closet. Downstairs is ready for game day or late-night hangouts. A large rec room leaves space for a sectional and media nook, the WET BAR elevates entertaining, and TWO ADDITIONAL BEDS with a full bath are perfect for guests or teens wanting privacy. Centrally located this community keeps everything within reach. Enjoy a round of golf at The Winston Golf Club or stop by Lina’s Italian Market for dinner inspiration. Quick routes to downtown, local restaurants, playgrounds, and green spaces make this pocket of the NW one of the most loved in the city. *Now under construction with an anticipated completion in February 2026offering you a rare opportunity to customize every detail and create your dream home today! (id:374)

Details

MLS #A2268641
Listing TypeFor Sale
StyleHouse
StatusActive
Year2026
Days On Site3
Listing Provided ByRE/MAX House of Real Estate | Lisa Johnson

Features

Bed(s)5
Bath(s) 5 Total
SQ Feet2,888
BasementY
Story(s)2
ZoningR-CG
Acreage0.11

Area Information

ProvinceAB
CityCalgary
Postal CodeT2M0Y2
Community NameTuxedo Park
Sourced by Back At You

Request a showing

Request a showing

Loading Form
The information is being provided by CREA. Information deemed accurate but not guaranteed. Information is provided for consumers personal, non-commercial use, and may not be used for any purpose other than the identification of potential properties for purchase. Copyright 2025 CREA. All Rights Reserved.

Contact

Learn More About This Property

ProvinceAB
CityCalgary
Postal CodeT2M0Y2
Community NameTuxedo Park
Sourced by Back At You
Nearby Listings (Within 1/4 mile)
Price: $1.559M - $2.598M
sqft: 2,000 - 3,500
Nearby Listings Property ImageNearby Listings Details
108 17 Avenue NW Property Photo 1
$1,990,000
108 17 Avenue Nw
Calgary, AB T2M0M6
Listing Updated: November 7, 2025 at 12:29:29 PM PST